Četvorosoban stan 98,81 m2 – Gradiška

Cijena na poziv
Prodaja
33215 ID nekretnine
99 m2 Veličina
3 Spavaća soba
1 Kupatilo

Opis

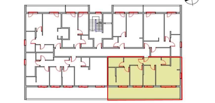
Gradiška, Ulica 16. Krajiške brigade. Prodaje se četvorosoban stan u izgradnji ukupne površine 98,81 m2 na povučenoj etaži (peti sprat), stambenog objekta koji će da posjeduje lift.

Strukturu stana čini: ulazni hodnik, toalet, kuhinja sa trpezarijom u sklopu dnevnog boravka sa izlazom na veliku lođu, degažman koji razdvaja dnevni od spavaćeg bloka, kupatilo i tri spavaće sobe.

Centralno grijanje će se snadbjevati iz gradske “Toplane” sa mogućnošću ugradnje kalorimetra.

Pored stanova su u ponudi ostave i garažna mjesta u suterenskoj garaži.

Rok za završetak gradnje je predviđen za Decembar 2026.godine.

Stambeni objekat je pozicioniran na odličnoj lokaciji, smješten između Acqua Plus Bazena i robne kuće Robot, takođe je odlično povezan sa drugim značajnim cjelinama u gradu!

Dokumentacija uredna!

Adresa

Pregled

  • ID nekretnine 33215
  • Cijena Cijena na poziv
  • Tip nekretnine
  • Status nekretnine
  • Soba 4
  • Spavaće sobe 3
  • Kuptila 1
  • Godina gradnje 2025 - 2026
  • Veličina 99 m2

Karakteristike

Kontakt

Tanja Talić

Agent za nekretnine

+387 65 978 255, +387 65 806 693
Ostale nekretnine
Unesite vaše ime!
Unesite vaš broj telefona!
Please enter your valid Email!
Unesite vašu poruku!