Dvosoban stan 45,56 m2 – Centar

Cijena na poziv
Prodaja
31302 ID nekretnine
46 m2 Veličina
1 Spavaća soba
1 Kupatilo

Opis

Banja Luka, Centar, Ugao ulica Vase Pelagića i Srpske.

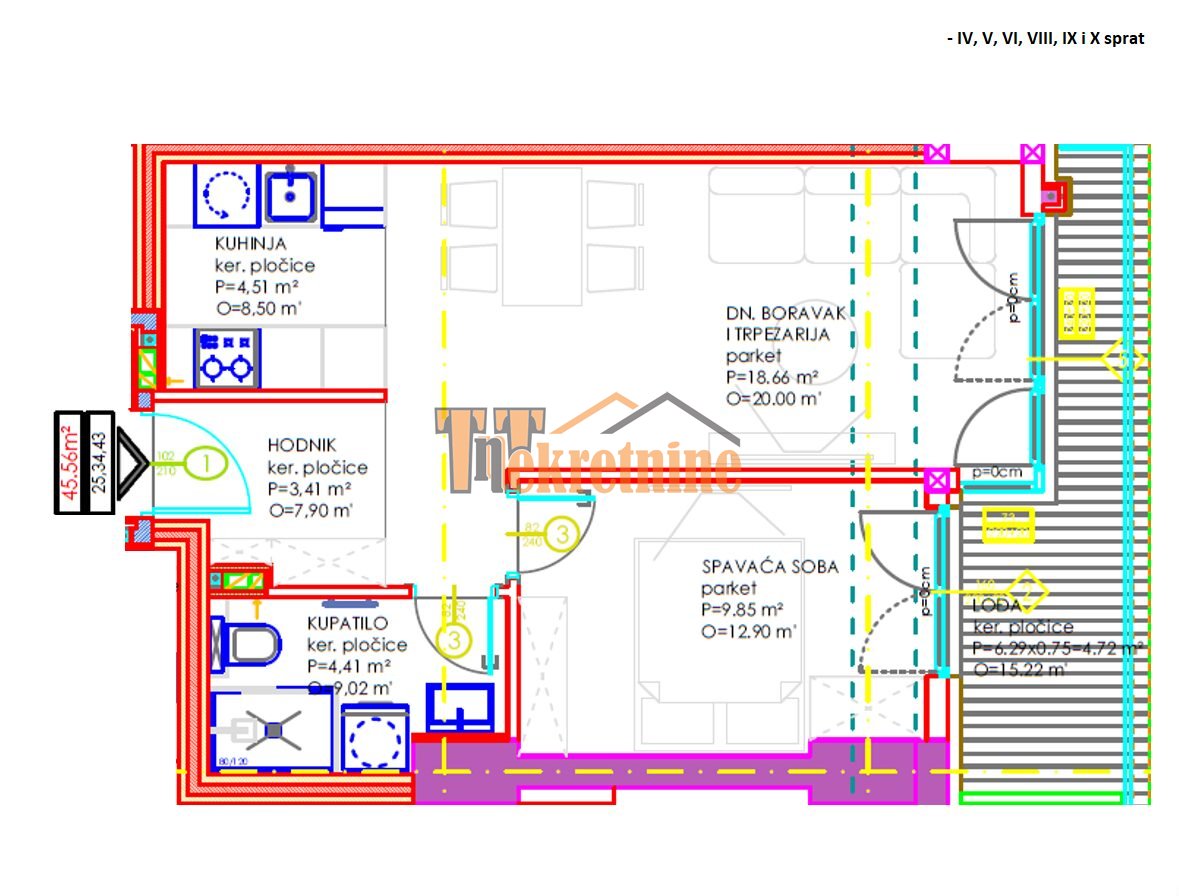
LAMELA 5 – prodaje se dvosoban stan u izgradnji ukupne površine 46,25 m2 na IV, V, VI, VIII, IX i X  spratu stambeno poslovnog komplexa “Palata”, zgrada će da posjeduje lift.

Strukturu stana čini: ulazni hodnik, kupatilo, spavaća soba, kuhinja sa trpezarijom u sklopu dnevnog boravka sa izlazom na lođu.

Centralno grijanje je gradska “Toplana” sa mogućnošću ugradnje kalorimetra.

U ponudi su pored stanova i parking mjesta u garažnom prostoru na tri nivoa.

Rok završetka gradnje je planiran za Oktobar 2026.godine.

Objekat je pozicioniran u samom centru grada na atraktivnoj lokaciji, odlično je infrastrukturno povezan sa značajnim cjelinama!

Adresa

Pregled

  • ID nekretnine 31302
  • Cijena Cijena na poziv
  • Tip nekretnine
  • Status nekretnine
  • Soba 2
  • Spavaće sobe 1
  • Kuptila 1
  • Godina gradnje 2024 - 2026
  • Veličina 46 m2

Karakteristike

Kontakt

Tanja Talić

Agent za nekretnine

+387 65 978 255, +387 65 806 693
Ostale nekretnine
Unesite vaše ime!
Unesite vaš broj telefona!
Please enter your valid Email!
Unesite vašu poruku!