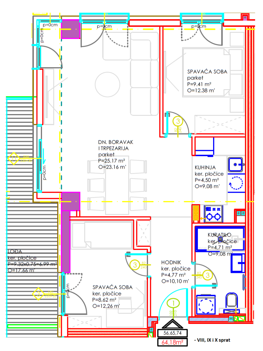
Trosoban stan 64,18 m2 – Centar
Cijena na poziv
Prodaja
Opis
Banja Luka, Centar, Ugao ulica Vase Pelagića i Srpske.
LAMELA 5 – prodaje se trosoban stan u izgradnji ukupne površine 64,18 m2 na VIII, IX i X spratu stambeno poslovnog komplexa “Palata”, zgrada će da posjeduje lift.
Strukturu stana čini: ulazni hodnik, kupatilo, spavaća soba, kuhinja sa trpezarijom u sklopu dnevnog boravka sa izlazom na lođu i druga spavaća soba.
Centralno grijanje je gradska “Toplana” sa mogućnošću ugradnje kalorimetra.
U ponudi su pored stanova i parking mjesta u garažnom prostoru na tri nivoa.
Rok završetka gradnje je planiran za Oktobar 2026.godine.
Objekat je pozicioniran u samom centru grada na atraktivnoj lokaciji, odlično je infrastrukturno povezan sa značajnim cjelinama!
Adresa
-
Zemlja Bosna i Hercegovina
-
Province/State Republika Srpska
-
City/Town Banja Luka
-
Naselje Centar