Trosoban stan 78,92 m2 – Centar (Palata)

Cijena na poziv
Prodaja
22472 ID nekretnine
80 m2 Veličina
2 Spavaća soba
1 Kupatilo

Opis

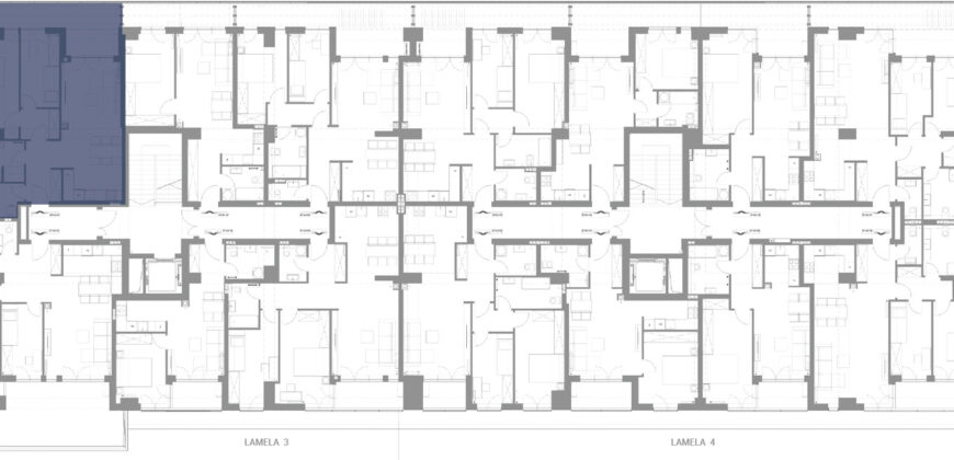
Banja Luka, Centar, Ugao ulica Srpske i Vase Pelagića. LAMELA 3 – prodaje se trosoban stan u izgradnji ukupne površine 78,92 m2 na II, III, IV, V i VI  spratu stambeno poslovnog komplexa “Siti mol”, zgrada će da posjeduje lift.

Strukturu stana čini: ulazni hodnik, vešeraj, kupatilo, kuhinja sa trpezarijom u sklopu dnevnog boravka sa izlazom na lođu, degažman koji razdvaja dnevni od spavaćeg bloka i dve spavaće sobe.

Centralno grijanje je gradska “Toplana” sa mogućnošću ugradnje kalorimetra.

U ponudi su pored stanova i parking mjesta u garažnom prostoru na tri nivoa.

Rok završetka gradnje je planiran za Septembar 2024.godine.

Objekat je pozicioniran u samom centru grada na atraktivnoj lokaciji, odlično je infrastrukturno povezan sa značajnim cjelinama!

Adresa

Pregled

  • ID nekretnine 22472
  • Cijena Cijena na poziv
  • Tip nekretnine
  • Status nekretnine
  • Soba 3
  • Spavaće sobe 2
  • Kuptila 1
  • Veličina 80 m2

Karakteristike

Kontakt

Tanja Talić

Agent za nekretnine

+387 65 978 255, +387 65 806 693
Ostale nekretnine
Unesite vaše ime!
Unesite vaš broj telefona!
Please enter your valid Email!
Unesite vašu poruku!