Trosoban stan 82,49 m2 – Centar (Palata)

Cijena na poziv
Prodaja
22476 ID nekretnine
82 m2 Veličina
2 Spavaća soba
1 Kupatilo

Opis

Banja Luka, Centar, Ugao ulica Srpske i Vase Pelagića.

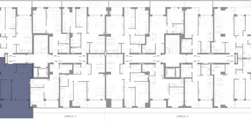
LAMELA 3 – prodaje se trosoban stan u izgradnji ukupne površine 82,49 m2 na II, III, IV, V i VI  spratu stambeno poslovnog komplexa “Palata”, zgrada će da posjeduje lift.

Strukturu stana čini: ulazni hodnik, toalet, kupatilo, kuhinja sa trpezarijom u sklopu dnevnog boravka sa izlazom na lođu i dve spavaće sobe koje takođe imaju izlaze na lađu.

Centralno grijanje je gradska “Toplana” sa mogućnošću ugradnje kalorimetra.

U ponudi su pored stanova i parking mjesta u garažnom prostoru na tri nivoa.

Rok završetka gradnje je planiran za Septembar 2024.godine.

Objekat je pozicioniran u samom centru grada na atraktivnoj lokaciji, odlično je infrastrukturno povezan sa značajnim cjelinama!

Adresa

Pregled

  • ID nekretnine 22476
  • Cijena Cijena na poziv
  • Tip nekretnine
  • Status nekretnine
  • Soba 3
  • Spavaće sobe 2
  • Kuptila 1
  • Veličina 82 m2

Karakteristike

Kontakt

Tanja Talić

Agent za nekretnine

+387 65 978 255, +387 65 806 693
Ostale nekretnine
Unesite vaše ime!
Unesite vaš broj telefona!
Please enter your valid Email!
Unesite vašu poruku!